Done in collaboration with colleagues at Dattner Architects, including John Woelfling, Steve Frankel, Emily Trulson and Mike Nickerson.
Located within the Cypress Hills neighborhood of Brooklyn, this 274,00 square foot mixed-use development includes new construction and the adaptive re-use of the early 1900s landmarked Empire State Dairy complex – a former milk production and distribution facility. The new 14-story building will create 320 units of housing including 77 inclusionary units with ground floor space for commercial and community facility uses and community facility space on the upper two floors of the landmarked building.
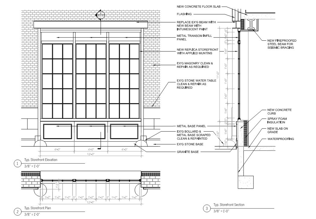
Part of the rezoning along Atlantic Ave in East New York, the preservation of the Empire State Dairy Building will be an important bridge between the industrial past of the neighborhood and the future development. 2840 Atlantic is designed to preserve the exterior façade of the landmarked building while maximizing affordable housing units and retail space.
The adaptive re-use of the Empire State Dairy buildings saves embodied energy and reduces landfill waste.